Description
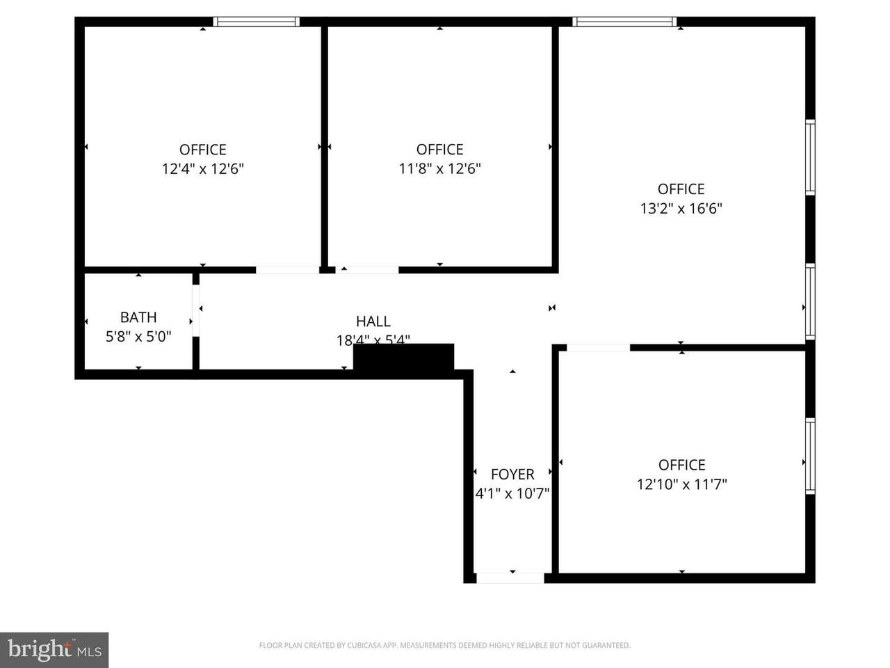
Flexible Professional Medical or Dental Office Space for Lease — Olney, Maryland Located in the heart of Olney, this professionally built-out dental and medical office offers a rare opportunity to lease between 1,000 and 3,168 square feet of turn-key space ready for immediate occupancy. The suite is currently configured at 2,068 square feet and includes five reserved parking spaces with elevator access. The layout can be reduced to 1,000 square feet or expanded up to 3,168 square feet (with ten reserved spaces) depending on tenant needs. 1,000 SF — $3,250/month 2,068 SF — $6,500/month 3,168 SF — $9,700/month All suites are fully equipped with water and electric, ideal for dentists, orthodontists, oral surgeons, or other medical professionals. Utilities are paid separately, and taxes are prorated above the 2025 base year. Water expenses are shared proportionally with upstairs tenants. The tenant is responsible for HVAC and roof maintenance. The lease structure favors a five-year term with a five-year renewal option, including 3% annual rent escalations. Prominent building signage is permitted at tenant expense, offering strong visibility in this high-traffic corridor. The property provides 12 visitor parking spaces on-site, with additional parking available across the street. This flexible configuration allows tenants to start small and expand as their practice grows—a rare opportunity to establish or scale a medical or dental office in a high-demand Olney location.
Description
Flexible Professional Medical or Dental Office Space for Lease — Olney, Maryland Located in the heart of Olney, this professionally built-out dental and medical office offers a rare opportunity to lease between 1,000 and 3,168 square feet of turn-key space ready for immediate occupancy. The suite is currently configured at 2,068 square feet and includes five reserved parking spaces with elevator access. The layout can be reduced to 1,000 square feet or expanded up to 3,168 square feet (with ten reserved spaces) depending on tenant needs. 1,000 SF — $3,250/month 2,068 SF — $6,500/month 3,168 SF — $9,700/month All suites are fully equipped with water and electric, ideal for dentists, orthodontists, oral surgeons, or other medical professionals. Utilities are paid separately, and taxes are prorated above the 2025 base year. Water expenses are shared proportionally with upstairs tenants. The tenant is responsible for HVAC and roof maintenance. The lease structure favors a five-year term with a five-year renewal option, including 3% annual rent escalations. Prominent building signage is permitted at tenant expense, offering strong visibility in this high-traffic corridor. The property provides 12 visitor parking spaces on-site, with additional parking available across the street. This flexible configuration allows tenants to start small and expand as their practice grows—a rare opportunity to establish or scale a medical or dental office in a high-demand Olney location.
©2026 Bright MLS, All Rights Reserved. IDX information is provided exclusively for consumers' personal, non-commercial use and may not be used for any purpose other than to identify prospective properties consumers may be interested in purchasing. Some properties which appear for sale may no longer be available because they are for instance, under contract, sold, or are no longer being offered for sale. Information is deemed reliable but is not guaranteed accurate by the MLS or Keller Williams Reston. Some real estate firms do not participate in IDX and their listings do not appear on this website. Some properties listed with participating firms do not appear on this website at the request of the seller. Data last updated: 2026-03-15T12:53:30.9.
