Description
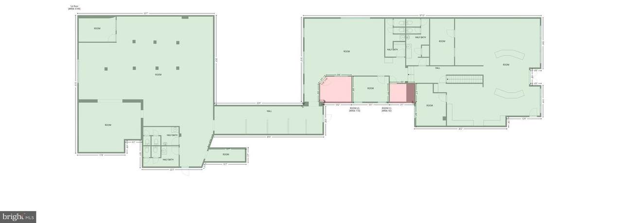
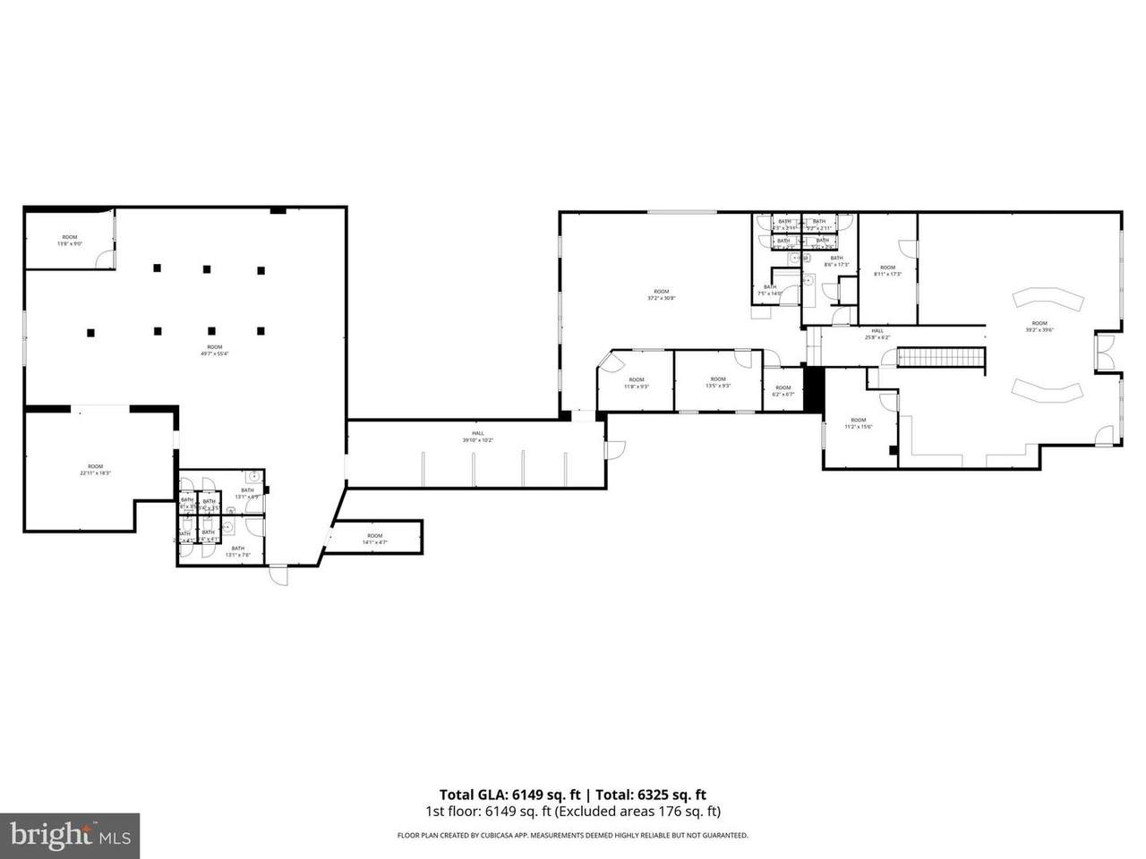
**Prime Downtown Commercial Space for Lease – 6,325 SF | First Floor | Immediate Availability**Make a statement in the heart of downtown Martinsburg with this exceptional 6,325-square-foot first-floor commercial space, available for immediate occupancy. Formerly home to the **Martinsburg Journal newspaper**, this well-known and long-established location offers both presence and flexibility for a wide range of commercial uses.The space features 26 private, off-street parking spaces in a dedicated rear lot—an outstanding amenity for downtown—along with easy street parking right at the front door. The layout and size make it an excellent fit for a trade school, retail showroom, professional offices, training center, grocery store, or creative workspace, with room to customize to your vision.**Lease terms are flexible.** The quoted price per square foot is a starting point, with **utilities, CAM charges, pass-throughs, and tenant improvement credits all negotiable**, allowing you to structure a deal that works for your business.**Full CAD files are available upon request**, along with **detailed floor plans, measurements, and 3D renderings** to support planning and build-out. Photos included in the listing highlight the scale and potential of this impressive space.**Shown by appointment only. Lister to accompany all showings.*
-
0BEDS
-
N/AACRES
-
0BATHS
-
01/2 BATHS
Description
**Prime Downtown Commercial Space for Lease – 6,325 SF | First Floor | Immediate Availability**Make a statement in the heart of downtown Martinsburg with this exceptional 6,325-square-foot first-floor commercial space, available for immediate occupancy. Formerly home to the **Martinsburg Journal newspaper**, this well-known and long-established location offers both presence and flexibility for a wide range of commercial uses.The space features 26 private, off-street parking spaces in a dedicated rear lot—an outstanding amenity for downtown—along with easy street parking right at the front door. The layout and size make it an excellent fit for a trade school, retail showroom, professional offices, training center, grocery store, or creative workspace, with room to customize to your vision.**Lease terms are flexible.** The quoted price per square foot is a starting point, with **utilities, CAM charges, pass-throughs, and tenant improvement credits all negotiable**, allowing you to structure a deal that works for your business.**Full CAD files are available upon request**, along with **detailed floor plans, measurements, and 3D renderings** to support planning and build-out. Photos included in the listing highlight the scale and potential of this impressive space.**Shown by appointment only. Lister to accompany all showings.*
©2026 Bright MLS, All Rights Reserved. IDX information is provided exclusively for consumers' personal, non-commercial use and may not be used for any purpose other than to identify prospective properties consumers may be interested in purchasing. Some properties which appear for sale may no longer be available because they are for instance, under contract, sold, or are no longer being offered for sale. Information is deemed reliable but is not guaranteed accurate by the MLS or Keller Williams Reston. Some real estate firms do not participate in IDX and their listings do not appear on this website. Some properties listed with participating firms do not appear on this website at the request of the seller. Data last updated: 2026-03-12T14:57:33.377.
